Nassaulaan 14

Nassaulaan 14

SCHIEDAM

vraagprijs

verkocht

Ook jouw woning succesvol verkopen? Neem dan contactmet ons op

Gratis waardebepaling

Omschrijving

Sfeervolle en ruime eengezinswoning met groene tuin aan de Nassaulaan 14 in Schiedam!

Ben je op zoek naar een charmante, goed onderhouden woning met een ruime tuin, vier slaapkamers én een fijne ligging? Dan is deze instapklare woning aan de Nassaulaan 14 in Schiedam absoluut een bezichtiging waard!

INDELING

Bij binnenkomst stap je in een royale hal die direct een gevoel van ruimte geeft. Hier bevindt zich ook de trap naar boven. Vanuit de hal loop je door naar de open keuken, die in 2012 is geplaatst. De keuken is tijdloos, goed onderhouden en voorzien van diverse inbouwapparatuur én een Quooker – ideaal voor de moderne kok! Vanuit de keuken heb je direct zicht op de prachtige tuin, een waar verlengstuk van de woning.

De woonkamer is bijzonder ruim, met een breedte van bijna 5 meter, en is voorzien van een mooie laminaatvloer die de gehele begane grond siert. Vanuit de woonkamer heb je toegang tot een handige kastruimte, een modern toilet én natuurlijk de tuin.

Tuin

De tuin is werkelijk een uniek kenmerk van deze woning. Gelegen op het noordoosten en omringd door veel groen is dit een heerlijke plek om tot rust te komen of gezellig met vrienden en familie te genieten van lange zomeravonden.

Eerste verdieping

Op de eerste verdieping vind je twee ruime slaapkamers, waarvan één met toegang tot een fijn balkon. De badkamer, geplaatst in 2008, beschikt over een ligbad, douche, toilet en wastafel – een comfortabele en complete ruimte.

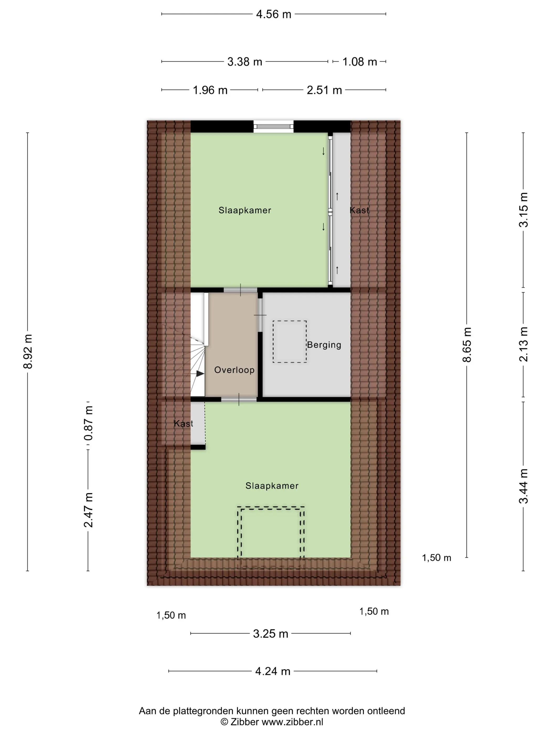
Tweede verdieping

Via een vaste trap bereik je de tweede verdieping met nog eens twee ruime slaapkamers en een grote berging. Ideaal voor gezinnen of mensen die thuis willen werken!

Bijzonderheden:

- Gebruiksoppervlakte wonen ca. 119 m²
- Bouwjaar keuken: 2012, met inbouwapparatuur en Quooker
- Badkamer uit 2008 met ligbad, douche, toilet en wastafel
- Maar liefst 4 ruime slaapkamers
- Brede woonkamer van ca. 5 meter
- Fraaie laminaatvloer op de begane grond
- Dak in 2025 vervangen
- Diepe, groene tuin op het noordoosten
- Balkon op de eerste verdieping
- Veel bergruimte
- Asbest- en ouderdomsclausule van toepassing

Kortom: Een verrassend ruime woning met veel licht, comfort en een heerlijke tuin in een prettige woonomgeving.

We verwelkomen je graag voor een bezichtiging!
Lees meer

Kenmerken

Overdracht

Status
verkocht
Aanvaarding
in overleg

Bouw

Soort woning
woonhuis
Soort woonhuis
eengezinswoning
Type woonhuis
tussenwoning
Aantal woonlagen
3
Bouwjaar
1904
Onderhoud binnen
goed
Onderhoud buiten
goed
Voorzieningen
mechanische ventilatie

Energie

Energielabel
C
Verwarming
cv ketel
Warm water
cv ketel
C.V.-ketel
gas gestookte combi-ketel uit 2015, eigendom

Oppervlakten en inhoud

Woonoppervlakte
118 m²
Perceeloppervlakte
130 m²
Inhoud
421 m³
Bergruimte oppervlakte
5 m²
Buitenruimte oppervlakte
5 m²

Indeling

Aantal kamers
6

Buitenruimte

Ligging
in woonwijk
Tuin
achtertuin met een oppervlakte van 45 m² en is gelegen op het noordwesten

Garage / Schuur / Berging

Garage
geen garage
Parkeergelegenheid
openbaar parkeren
Schuur/berging
vrijstaand hout

Foto's

Plattegronden

Locatie

Video's

Vraag een bezichtiging aan of neem contact met ons op